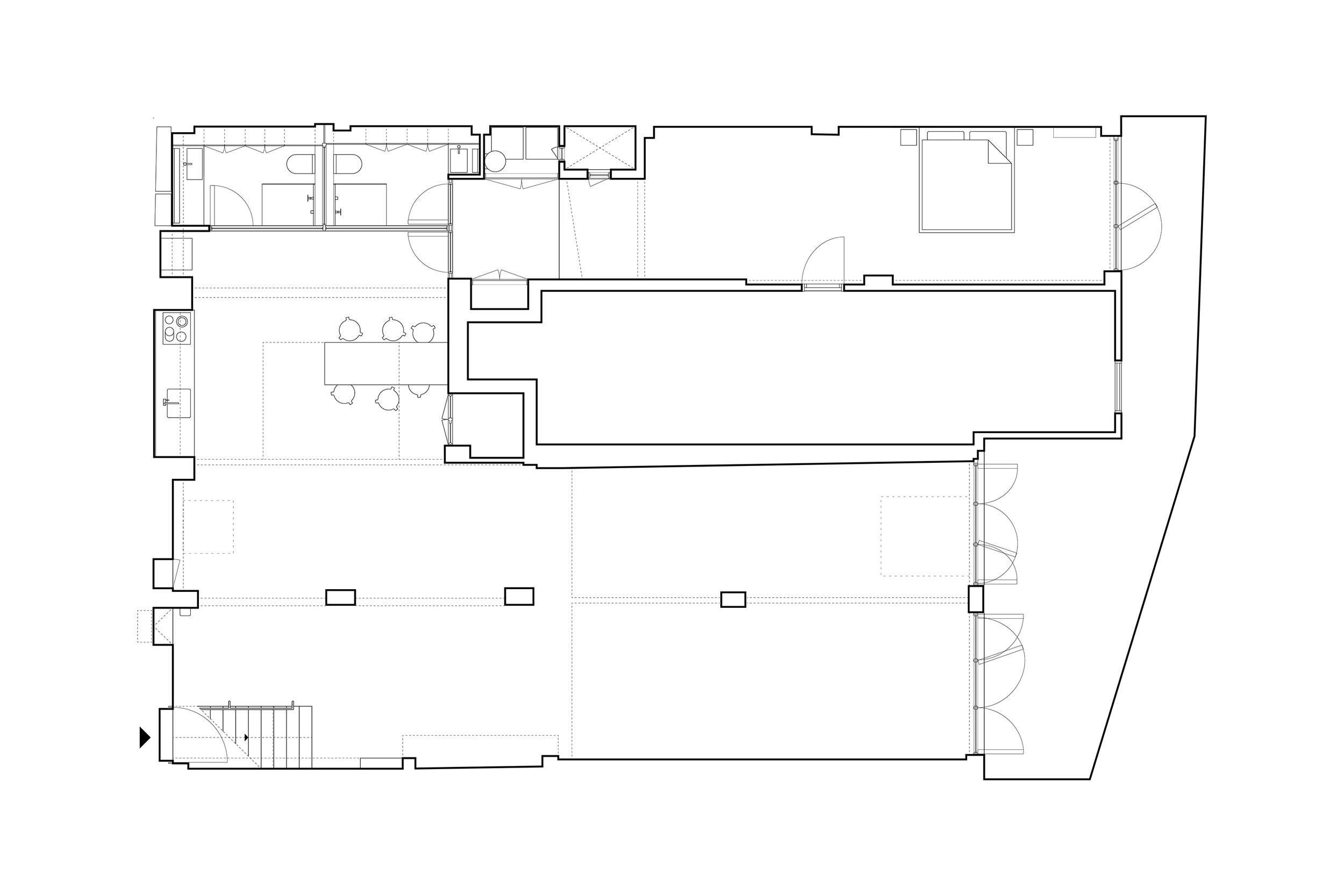
Artist Studio and Residence

A semi-basement in Koukaki, Athens — formerly a textiles storage — stripped to its concrete bones and reimagined as an artist's studio and residence. Custom steel frames open onto a small courtyard, drawing indirect light deep into the underground space. Infrastructure and bespoke lighting runs exposed along fifty-year-old beams. Evoian marble, Naxian marble, plywood and steel complement the original terrazzo and concrete aesthetic. The 171 sqm open plan accommodates two lives — domestic and creative — or transforms entirely into one.

Year: 2025
Location: Koukaki Athens, Greece

Photography: Vasso Paraschi

Previous
Previous

GSP public space in Cyprus